すくすく 間取り

定員:大人6~15名

◆地元の天城杉を使った極太丸太のログハウス
・3LDK
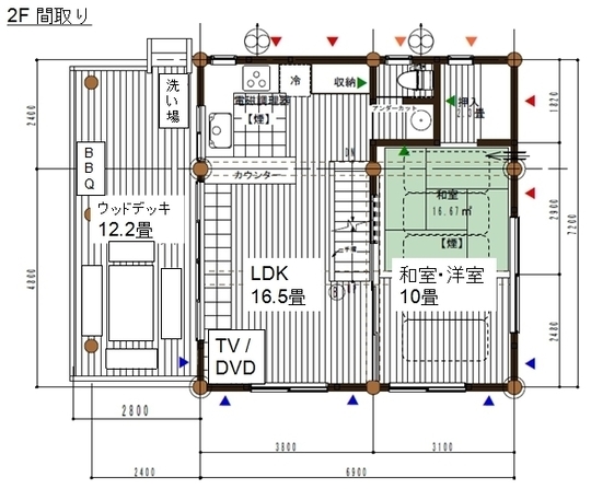
・2F LDK 16.5畳
・職人手作りのキッチン
・2F ウッドデッキ 12畳
・温泉付きヒノキ風呂
・2F 寝室 10畳 , ロフト 8畳
・1F 1K 9畳 , ウッドデッキ 17畳

◆各階にトイレあり

                  ※1階客室のカウンターは撤去しました。

こちらのページもどうぞ

パソコン|モバイル
ページトップに戻る